Designed by you built by eastwood homes.

Sullivan center floor plan.
View a detailed profile of the structure 117485 including further data and descriptions in the emporis database.
For more information please visit 25live and use the locations tab to search for a space.
Building is a majestic presence at the corner of state and madison.
See a floorplan specific walkthrough video tour and interior photos of the sullivan floorplan 2 bed 2 bath at town park lofts apartments in kingsport.
Locations the best locations of middle tennessee.
Models plans discover the perfect home plan for you.
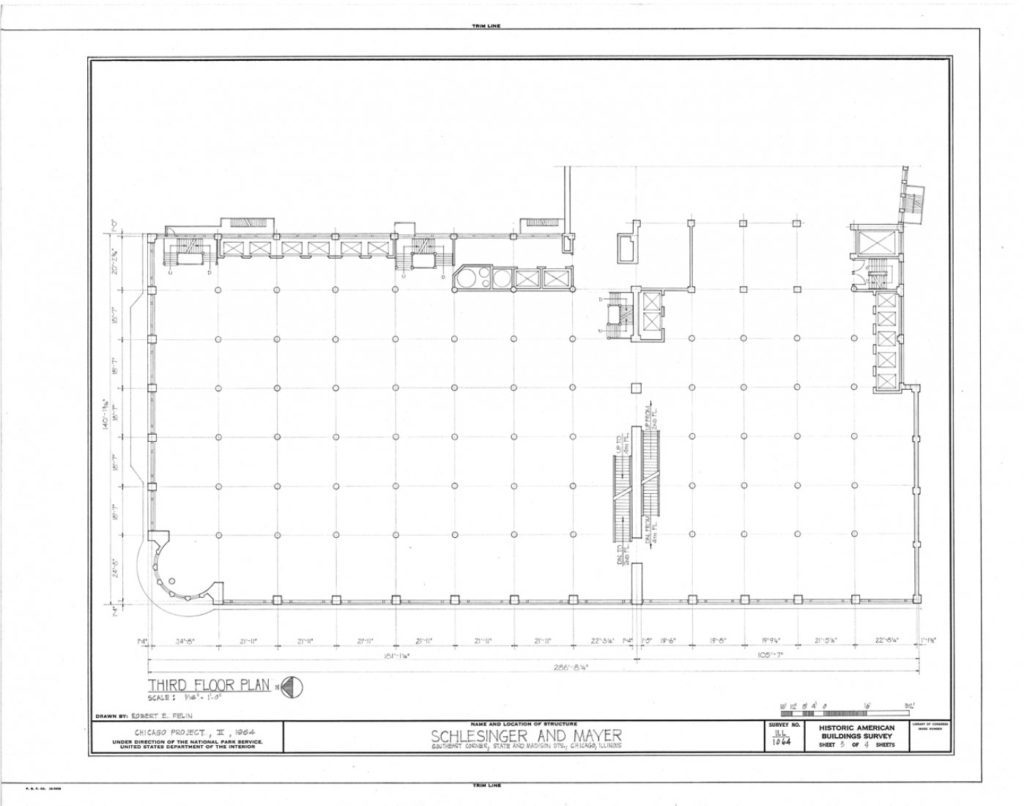
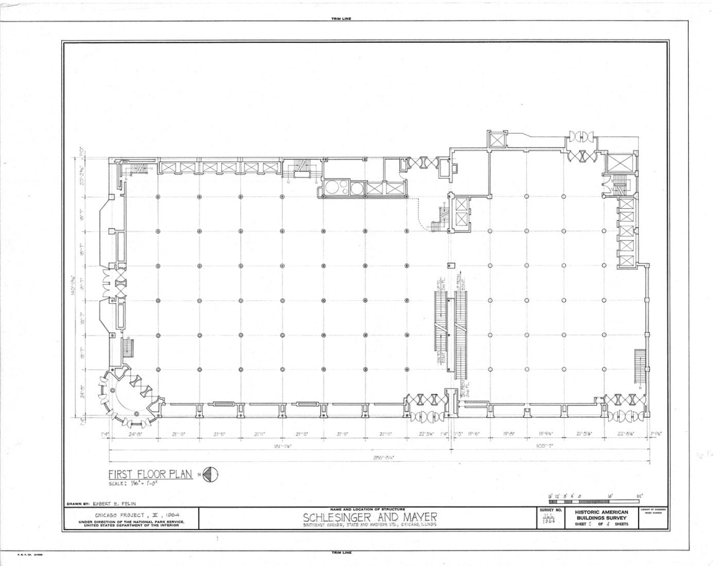
The carson pirie scott store sullivan center by architect louis sullivan was built in chicago illinois united states in 1899 1903.
The sullivan floor plan at orchards at reidville is a 3 4 bed 2 3 bath home in reidville sc.
It was then remodeled in 1906 1948 1960 1978 1980.
The details sub tab of the locations tab has extensive up to date information about spaces in 25live visual instructions heresullivan center regular hours of operation are listed below sullivan center spaces will not be available for reservation during.
Available homes find your landmark.
The sullivan center for innovation and leadership at iolani school is a sustainably designed 40000 square foot four story facility dedicated to citizenship applied technology scientific discovery and digital communication.
Sullivan center also known as the carson pirie scott co.
Click to take a floor by floor look at the sullivan center for innovation and leadership.
The sullivan center formerly known as the carson pirie scott and company building or carson pirie scott and company store is a commercial building at 1 south state street at the corner of east madison street in chicago illinoisit was designed by louis sullivan for the retail firm schlesinger mayer in 1899 and expanded by him and subsequently sold to hg.
Sullivan floor plan get more info download pdf.
It is 6312 m high.
Designed by you built by eastwood homes.
Models plans discover the perfect home plan for you.
The sullivan floor plan at heritage an age restricted community is a 3 4 bed 2 3 bath home in wesley chapel nc.
Sullivan Center 3ª Planta Wikiarquitectura
Oma Philippe Ruault Ossip Van Duivenbode Inigo Bujedo Aguirre
1120 1128 Ne 21st Ave Apartments For Rent 1120 1128 Ne 21st
Mercy College Of Health Sciences About Us Campus Map
Stata Center Massachusetts Verdict Designbuild
Public Television Public Radio For Rochester February 00
Chicago School Of Architecture And The Birth Of Skyscrapers
2017 Venue Unconferenz
Carson Pirie Scott Store Sullivan Center Data Photos
Transforming A Dental Practice One Step At A Time Sullivan Dental
Adler And Sullivan Stock Photos Adler And Sullivan Stock Images
Floor Plans The Admiral At The Lake
Sullivan Hall Housing Residence Life Eastern Kentucky University
Sustainability Free Full Text Development Of A Building
루이스 설리반 최고 인기 이미지 22개 도시 문 및 고전
Hanking Center Tower Morphosis Architects Arch2o Com
A Look Inside A Modern Jail Facility Miami County Republic
Https Encrypted Tbn0 Gstatic Com Images Q Tbn 3aand9gcr Xsbxfew7thc7xlczs2jh8jv2rj7p8uz54h8nytuvgsy2h4yj
Floorplan Of The Sullivan Center Gallery 14 Trends
Guaranty Building Plan
Clara Barton James Sullivan Elementary Schools Reopen After
Wainwright Floor Plan Arquitectura Edificios Planos
A Floor Plan Of 10 Story Building And B 10 Story Eccentrically
Gensler Sites Open House Chicago
Center For Music Production First Floor Plan Universal Design
A Growth Strategy Consulting Research Firm Frost Sullivan
Sullivan County Department Of Archives And Tourism
Lexington Double Wide The Sullivan 2852 By Lexington Homes
Camp Sullivan Forest Preserves Of Cook County
Sullivan Center Virtual Tour Iolani School
Sullivan Center Buildings Of Chicago Chicago Architecture
Lumijb27ygll1m
Northampton Center For The Arts
Sullivan Center Wikipedia
Sullivan Center Buildings Of Chicago Chicago Architecture
Https Www Emerson Com En Sg Terms Of Use Https Www Emerson
Ed Sullivan Theater Wikipedia
Event Venues In Kingsport Meadowview Conference Resort
Sullivan House Floor Plan Frank Betz Associates
Https Www Jstor Org Stable 3101217
Louis Sullivan Wainwright Building Plan
New Owner Pat Sullivan Has A Plan For Allisonville Nursery Garden
Hayley Kerstein Elevation Real Estate Posts Facebook
Projects Development
Northeast Portland Or Apartments Twentytwenty Apartments
Louis Sullivan
Sullivan Hall University Housing
Sullivan Center Restoration And Transformation Of A Landmark
60 Best Early 20th Century American Arch Images Louis Sullivan
215 Sullivan Street Apt Thc Greenwich Village Nyc Real Estate
An Architectural Guide To Successful Conference System Design
Sullivan Hall University Housing
Many In Sullivan County Continue To Raise Concerns About Two New
Fedex Office Veradale Washington 212 N Sullivan Rd 99037
Sullivan Center Campus Reservations Loyola University Chicago
60 Best Early 20th Century American Arch Images Louis Sullivan
Northeast Portland Or Apartments Twentytwenty Apartments
College Of Charleston Housing Sterling Campus Center
Stata Center Massachusetts Verdict Designbuild
Https Www Aacu Org Sites Default Files Files Ild Map 20of 20luc 20with 20locations 20noted 0 Pdf
The Story Of Louis Sullivan S Carson Pirie Scott Store Wendycity
Carson Pirie Scott Building Inside
College Of Charleston Housing Sterling Campus Center
Sullivan Center Virtual Tour Iolani School
Campus Map Syracuse Edu
Prudential Guaranty Building Wikipedia
The Sullivan House B B Reviews New Shoreham Ri Tripadvisor
Advising Center Coming To Clemons Construction To Begin In
Downtown Chicago Event Space Park Hyatt Chicago
Master Builder Claremont Review Of Books
The Wainwright Building Journal Of The Society Of Architectural
Winter 2020
Https Www Anantara Com Uploads Minor Anantara Documents Anantara Riverside Bangkok Resort Hotel Info Anantara Riverside Fact Sheet May 2018 Pdf
Sustainability Free Full Text Development Of A Building
Louis Sullivan Bungalow Wikipedia
Facility Rentals City Of Tukwila
Floor Plan Of The Case Study Building Brick Masonry Walls Are
The Liberty Champion Nov 16 By Liberty Champion Issuu
Floor Plan Of The Case Study Building Brick Masonry Walls Are
Fedex Office Veradale Washington 212 N Sullivan Rd 99037
Meeting Room Capacity Warwick Allerton Chicago
Sullivan Carson Pirie Scott Building Article Khan Academy
Cs Portfolio 2013
Northampton Center For The Arts
North Charleston Sc Apartments For Rent Ingleside Plantation
Brighton College Oma Archdaily
Wainwright Building Elevation
Sullivan Arena Seating Chart Map Seatgeek
Event Venues In Kingsport Meadowview Conference Resort
Conference And Event Center Association Of The United States Army
Projects Development
Auditorium Building
Challenges Of Underpinning Two Landmark Buildings1 Practice
Hanking Center Tower Morphosis Architects Arch2o Com
5 Dan Sullivan Keystone Library Project 3 1 1
Sullivan Center Virtual Tour Iolani School
Sullivan County Department Of Archives And Tourism
John M Flaxman Library School Of The Art Institute Of Chicago