The live 2020 security floor plan location.

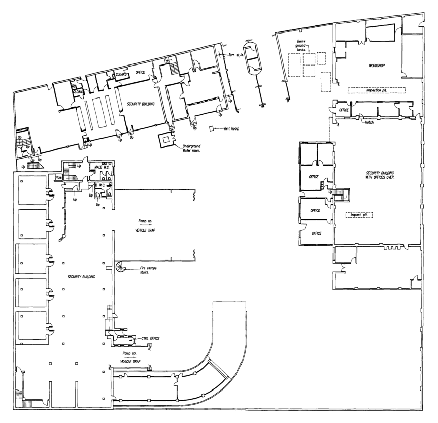
Security building floor plan.
Simply add walls windows doors and fixtures from smartdraws large collection of floor plan libraries.
Security cameras are an effective tool for monitoring the interior of your business as well as recording evidence of crimes for later investigation.
Create floor plan examples like this one called house plan with security layout from professionally designed floor plan templates.
Here is a simple building security access example available in different formats.
Commercial office buildings include.
Melbourne convention exhibition centre 1 clarendon street south wharf vic.
Drawing security and access plan has to take into account all the safety factors.
Interior security is your final level of security and consists of the interior of your buildings.
When you are dealing with floor plans for your office or home its good to have a security and access plan as well.
House plan with security layout.
Security and access plan example a free customizable building security and access example is provided to download and print.
Visit floor plan creators youtube channel to find more information about the application.
Subscription change unused part of the current billing period payment will be discounted from the new plan price.
Security and access plan is a kind diagram which ensures the security of a building or an event.
Any equipment that is responsible for certain aspects of security can be incorporated into a security and access floor plan.
This solution supplied with three libraries that contain more than 100 vector stencils of security and access equipment.
Develop a comprehensive security plan and emergency response plan for the facility.
Conduct regular exercises with facility employees.
Any equipment that is responsible for certain aspects of security can be incorporated into a security and access floor plan.
When you are dealing with floor plans for your office or home its good to have a security and access plan as well.
Ability to create a security and access plan in conceptdraw diagram is contained in the security and access plans solution.
The guard house design layouts can be defined as the dimensions of the guard house itself meaning the length and width of the building as well as the location of the door and windows or other options chosen for the structure.
You can edit this building security and access plan with just a few click then it will be your own in minutes.
Z Islander Texas A M Apartments Welcome Home
School Security Office Floor Plan
Security And Access Plans Solution Conceptdraw Com
Modern Floorplans High Rise Building Fabled Environments
Jonathan Ochshorn Lecture Notes Arch 2614 5614 Building
Security Design And Planning For Multi Purpose Buildings
52 Best Guard Houses Images In 2020 Guard House Design Building
Security Metrics Office Building Curtis Miner Architecture
Eclipsecon 2008
An Astronomical Society Restored Their Historic Ob Chegg Com
Office Floor Plan With Plans For Correct Planning Kitchen
Https Www Granitepark Com Wp Content Uploads 2019 09 Gp3 Emergency Procedures 2019 Pdf
Luxurious Apartment House List Chuo Ku Apartments Tokyo High
Safety And Security
Thread By Cybergibbons So In Terms Of Heist Planning One
Guildhall School Of Music And Drama Floor Plan Architecture
Gallery Of Telecom Office Building Oficina Ideias Em Linha 15
Building Services Project 1
Pcs Building Security
Https Www Granitepark Com Wp Content Uploads 2019 09 Gp3 Emergency Procedures 2019 Pdf
School Security Features Incident App Solutions
Gallery Of Fire Station Of Tianfu New District Cswadi 19
Luxurious Apartment List To 950 000 Yen No Maximum Bedroom S No
Security Guard Security Office Plan
Xstrata Security Gate Mobius Design
Casa Viva By Lodha Floor Plans Property Prices For 1 Bhk And 2
View Floor Plans Grand Central Market Apartments In Downtown La
Home
Side Sectional Details Of Local Civil Security Office Dwg File
Shin Kong Taiwan Security Building Colliers International
Index Of More Info Guard Shacks And Security Buildings Images
Rental Office 3 Rooms Les Floralies Monaco Monte Carlo
Security And Access Plans Solution Conceptdraw Com
One Story Building Clipart
Operator Shelter Guard House 2 Parkline Inc
Plant Layout Plans Solution Conceptdraw Com
Https Www Cedengineering Com Userfiles Intro 20to 20air 20traffic 20control 20facilities Pdf
Security Block C Administration Building Ground And Second Floor
Smart Building Solutions Ecloudoman Make It Simpler Safer And
10 Best Counseling Office Floor Plans Images Office Floor Plan
Modern Mixed Use Building 3d Model In Buildings 3dexport
Classroom Laboratory Building Map Clb Johnson County Community
Security In Bank Stock Vectors Images Vector Art Shutterstock
Gallery Of Seona Reid Building Steven Holl Architects 40
Gallery Of Social Security Administration Building In Barcelona
Xstrata Security Gate Mobius Design
Better Cyber Security For Construction Mj Insurance
Condo Suites Saratoga Condominiums
School Security Compartmentalization I Dig Hardware
Guard House Designs Guard House Design Layouts Guardhouse Plans
Gallery Of Social Security Administration Building In Barcelona
Building Plan For Two Bedroom Apartment Lawrenceschool Co
Building Plan Examples Free Download
Office Floor Plan 17th Central Executive Suites
Semi Ground Floor Plan For Commercial Building With Architectural
Gallery Of Nevsehir Bus Terminal Bahadir Kul 14
Conceptdraw Samples Floor Plan And Landscape Design
Villa Menari 24 Hr Security Great Value Easy Walk To Famous
Hotel Floor Plans Cva Proposed Hotel Building Trail B C Floor
Smart Building Management System Smartneura
Luxurious Apartment List To 950 000 Yen No Maximum Bedroom S No
Office Space Layout Design Mesmerizing Planners Other Virtual
Building A Cyber Security Operations Center For Scada Ics Environments
Small Security Office Floor Plan
Consulting Specifying Engineer New Handbook Address Smoke
Building Security Plan Sample Security Guards Companies
Which Is Best App For Making Floor Plans Quora
Security And Access Plans How To Draw A Security And Access
25 Best Ideas About Craftsman Style Bungalow On Pinterest What Is
Gatehouse Romtec Inc
Camera On Building Stock Vectors Images Vector Art Shutterstock
Security And Access Plans Physical Security Plan How To Draw A
The Lofts At The Security Building Los Angeles Ca Apartment
Index Of More Info Guard Shacks And Security Buildings Images
Security Pre Planning Faro Public Safety Forensics
Luxurious Apartment House List Setagaya Ku Apartments Tokyo
Use The Lan Topology For The Building Floor Design Chegg Com
West Wing Floor Plan House Building White House Free Png Pngfuel
Gallery Of Nmmu B Ed Foundation Phase Building The Matrix Cc
Security Planning Services By Silva Consultants
Winchester House Plan 563 4 Bed Den 3 Bath 2 893 Sq Ft In
Gallery Of Social Security Administration Building In Barcelona
1575032032000000
Sadat Resthouse Security Building Working Drawing Ground Floor
100 Office Building Floor Plan Regnier Center Building Map
Security And Safety In Laboratories Wbdg Whole Building Design
Security And Access Plans Solution Conceptdraw Com
Architectural View With Second And Third Floor Plan For Block C Of
Product Details Digital Guards
Create Floor Plan
Security And Access Plans Solution Conceptdraw Com
Security And Access Plan Floor Plan Solutions
92 Floor Plan Of Filling Station Plan Station Of Filling Floor
Guard House Designs Guard House Design Layouts Guardhouse Plans
Gh121224 China Building Prefabricated Security Guard House Plans
The Electrical And Telecom Plan Includes Building Electrification
Security Checkpoint In A Building Entrance Hall Stock Photo
Practical Information Zero Project Conference 2019