Starting at the top we made the roof three inches thick to accommo with its separate lounge galley and bedroom areas.

1997 minnie winnie floor plans.
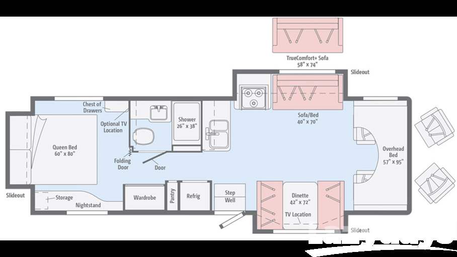
The winnebago spirit has 5 different floorplans 22r 22m 25b 31k and the new 31h.
Awning electric 2 step entry ladder hitch outside shower spare.
First appearing in 1960 winnebago has grown to be an icon in the recreational vehicle industry.
View other floor plans from winnebago.
Minnie winnie even better.
The winnebago minnie motorhome built on the ford e350 chassis and the ford e450 chassis provides many floorplans so that you may find the perfect one to fit your needs.
1997 winnebago listings within 0 miles of your zip code.
Ducted air conditioning ducted heat onan microquiet 4000 generator 6 gallon water heater ford chassis e super duty outside features.
View all go.
Values specifications special notes.
Rv type mini motor home class c fuel type gasoline length 31 self contained yes slides na floor plan center kitchen rvs for sale.
Values specifications special notes.
The unit has under 46000 miles and is priced under 21000.
Other upscale additions are a larger microwave oven available satellite tv and a hiyh mount rear brakelight.
Details of the winnebago minnie winnie class c motorhome made by winnebago industries on the ford chassis.
Nonetheless a lot of choice in the particular form of floor plans can be confusing sometimes.
From the beginning winnebago pursued high attention to quality building furniture and components specific to their recreational vehicles.
Details of the winnebago spirit and the minnie winnie class c motorhome made by winnebago industries on the ford chassis.
Find 1997 winnebago listings for sale near you.
By building on the.
For floor plans you can find many ideas on the topic minnie winnie floor plans 1997 minnie winnie floor plans 2014 minnie winnie floor plans 2018 minnie winnie floor plans and many more on the internet but in the post of minnie winnie floor plans we have tried to select the best visual idea about floor plans you also can look for more ideas on floor plans category apart from the topic.
1997 winnebago prices values and specs select a 1997 winnebago series.
1997 winnebago minnie winnie series m 31wq ford specs.
The winnebago minnie winnie has 5 different floorplans 22r 22m 25b 31k and the new 31h.
This 1997 winnebago minnie winnie 31qw is a nice class c motorhome.
Nc8of9p0cp5vum
Winnebago Minnie Winnie Class C Rv Lazydays
C40187 2018 Winnebago Minnie Winnie 26a Class C For Sale In
Winnebago Minnie Winnie 31 C Rvs For Sale
Index Of Images 1997 Winnebago 31
Class C Rv Rentals Outdoorsy
1997 Winnebago Minnie Winnie 31wq Class C Piqua Oh Psrvs
Winnebago Minnie Winnie 321rb Chevrolet Ford Camping
Tea Sd Winnebago For Sale Winnebago Rvs Rv Trader
2108tb2 2020 Winnebago Micro Minnie 2108tb Travel Trailer For
90702 2020 Winnebago Minnie Winnie 22r Class C For Sale In
10406 2020 Winnebago Minnie Winnie 31k Class C For Sale In
2005 Winnebago Rv Minnie Winnie 32g For Sale In Denton Tx 76207
Winnebago Houston Classifieds Claz Org
Rvs For Sale Airstream Of Virginia
41936 2020 Winnebago View 24d Class C For Sale In Rapid City Sd
Comparemodels Ron Potts Rvs Johnstown Ohio
Winnebago Minnie Winnie Class C Rv Lazydays
Winnebago Minnie Winnie 31c Rvs For Sale
Floor Plans Specifications
Pre Owned Rvs For Sale Winnebago S Tradenet Rvs Com
Winnebago Lesharo Wikipedia
2013 Forest River Sunseeker Ford Chassis 2650s Horn Rapids Rv
1997 Winnebago Minnie Winnie 31wq Class C Piqua Oh Psrvs
Coachmen Catalina 220rk Rvs For Sale
1997 Winnebago Minnie Winnie 29wq Used Rvs Clearwater Florida
Floor Plans Specifications
Pshlkk4kr9r 2m
1997 Fleetwood Pace Arrow Vision 35d Rv392 Link Rv Rice Lake
Our Rv Inventory Heidi S Rv Centre
91176 2020 Winnebago Minnie Winnie 25b Class C For Sale In Sanger Tx
Our Rv Inventory Heidi S Rv Centre
1997 Fleetwood Pace Arrow Vision 35d Rv392 Link Rv Rice Lake
91176 2020 Winnebago Minnie Winnie 25b Class C For Sale In Sanger Tx
Rv Net Open Roads Forum Class C Motorhomes Table Options
Winnebago Minnie Winnie Class C Rv Lazydays
1995 Class C Minnie Winnie 29 Feet For Sale Waterbury Vermont
22 Foot Minnie Winnie Floor Plans
Winnebago Minnie Winnie 31 C Rvs For Sale
19 Beautiful Winnebago Minnie Winnie Floor Plans
Minnie Minerva Review Of Class C Minnie Winnie Winnebago
Winnebago Minnie Winnie Class C Rv Lazydays
39689 2018 Winnebago Winnie Drop 170s Blue Graphite Travel
Minnie Winnie For Sale Winnebago Class C Motorhomes Rv Trader
Winnebago Minnie Winnie Rvs For Sale Rvs On Autotrader
19 Images Winnebago View Floor Plans
2018 Winnebago Minnie Winnie 31k Class C Rv For Sale In Morgan
90702 2020 Winnebago Minnie Winnie 22r Class C For Sale In
Winnebago Industries Wikipedia
Oteri7bcggi Vm
C40187 2018 Winnebago Minnie Winnie 26a Class C For Sale In
Micro Minnie Inventory Great Escape Rv
19 Beautiful Winnebago Minnie Winnie Floor Plans
1997 Winnebago Minnie Winnie 31wq Class C Piqua Oh Psrvs
41969 2020 Winnebago Voyage V3134rl Fifth Wheel For Sale In
Volkswagen Rialta Inside
The Toyota Mini Motorhome A Quirky Rv With A Strong Following
1997 Winnebago Minnie Winnie 31wq Class C Piqua Oh Psrvs
Winnebago Minnie Winnie Class C Rv Lazydays
Shop Our Under 20k Inventory In Woodstock And White Ga
2003 Winnebago Minnie Winnie 31c For Sale Peoria Az Rvt Com
Used 1997 Winnebago Minnie Winnie 31wq Motor Home Class C At Us
Used 1998 Winnebago Itasca Spirit Class C Youtube
1997 Winnebago Minnie Winnie Motor Home Class C Rental In Dayton
98 Chieftain Winnebago Fuse Box Today Wiring Schematic Diagram
44 Used Winnebago Minnie Winnie Minnie Winnie 31g Rv Trader
Rialta Inside
Winnebago Minnie Winnie Motorhome Rvs For Sale Rvs On Autotrader
2005 Winnebago Rv Minnie Winnie 32g For Sale In Denton Tx 76207
90699 2020 Winnebago Minnie Winnie 22r Class C For Sale In
39670 2018 Winnebago Minnie Drop 170s Cherry Cobblestone
Winnebago Minnie Winnie Class C Rv Lazydays
1996 Winnebago Minnie Winnie 29wqdl 01152 Trailers And Hitches
Pre Owned Inventory Western Skies Rv
Winnebago Minnie Winnie Class C Rv Lazydays
Winnebago Houston Classifieds Claz Org
Winnebago Houston Classifieds Claz Org
Floor Plans Specifications
1997 Winnebago Minnie Winnie For Sale Mike Thompson S Rv Super
2020 Winnebago Minnie Winnie 31h Class C Rv For Sale In Wixom
10406 2020 Winnebago Minnie Winnie 31k Class C For Sale In
Winnebago Auta Com
Shop Our Under 20k Inventory In Woodstock And White Ga
1997 Winnebago Minnie Winnie 31wq Class C Piqua Oh Psrvs
2020 Winnebago Minnie Winnie 25b Class C Rv For Sale In Greer
Winnebago Minnie Winnie 31 C Rvs For Sale
Pre Owned Inventory Western Skies Rv
Portland Icinde Ikinci El Satilik 1997 Winnebago Minnie Winnie 31
31ft Forester 1990 Ca Stanton Rv Rentals Share My Coach
Tea Sd Winnebago For Sale Winnebago Rvs Rv Trader
Winnebago Minnie Winnie 31 C Rvs For Sale
Winnebago Rvs Auction Results 53 Listings Rvuniverse Com
38573 2018 Winnebago Minnie Drop 1790 Blue Stone Travel
1997 Minnie Winnie For Sale Winnebago Rvs Rv Trader
New Or Used Winnebago Minnie Winnie Rvs For Sale Camping World
Winnebago Rvs For Sale Stop By Today Ppl Motor Homes
Thor Four Winds 22 Floor Plan Class C Rv Class C Motorhomes
Pre Owned Rvs For Sale Winnebago S Tradenet Rvs Com